JR武蔵野線「東所沢」駅徒歩8分
所沢市東所沢和田1丁目 中古戸建住宅
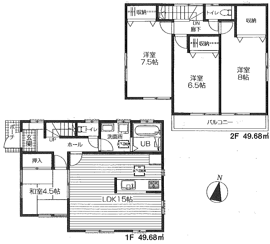
土地面積:103.64㎡(31.35坪)
建物面積: 99.36㎡(30.05坪)
      平成22年5月築 大型4LDK
お陰様で契約となりました。
   ★株式会社イーストワン★
  埼玉県所沢市東所沢和田3-5-9
   TEL:04-2937-6064 FAX:04-2937-6074
  HP:http://www.eastone1.jp.jp
  【オンライン不動産情報】
 不動産の売却・買取・売買・仲介・賃貸・住替え・住宅ローン相談・リフォーム相談
                                         
 
 
 
 
 
 
         
                                                                 
                                                                 
                                                                 
                                                                 
         
         
                 
             
    
             
                            